Description
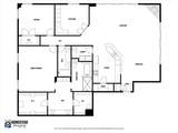
Experience premium lakefront living in this stunning 5th-floor condo in Diamond Pointe tower. North facing, the unit offers unobstructed, panoramic lake views from the private patios—two with direct vistas of the sparkling water.Diamond Pointe sets the standard for luxury and security at Lake Texoma, boasting an unrivaled location and panoramic views. Residents benefit from a gated entrance and secure building access, with features like sprinklers throughout, an internal stairwell, and a striking glass-front elevator that offers sweeping vistas of the lake as you ascend or descend. The main lobby, thoughtfully designed, provides mail service and a dedicated space for package deliveries, ensuring convenience at every turn. Privacy and exclusivity are paramount here—there simply is no finer building in the area that combines such discretion with its outstanding setting.Step outside to enjoy a spacious balcony, perfect for morning coffee or evening gatherings with breathtaking lake views. Inside, the open concept layout seamlessly combines the kitchen, dining, and living areas, highlighted by an electric fireplace and captivating lake scenery. The unit features two spacious bedrooms and an office with a desk and Murphy bed, perfect for extra guests. The primary suite boasts an en-suite bath with a walk-in shower, walk-in tub, double vanities, and two generous walk-in closets. The secondary bedroom also enjoys a walk-in closet.Enjoy low-maintenance living with exclusive amenities, including a two-car garage in the main building, a large secured storage room on the ground floor, and two reservable guest rooms for visitors. Boating enthusiasts will appreciate the private dock slip with convenient tram access.Ideal as a full-time residence or a luxurious lake getaway, this community welcomes both year-round and secondary owners. Embrace the best of Lake Texoma living.
-
2BEDS
-
1.89ACRES
-
2BATHS
-
01/2 BATHS
-
2,180SQFT
-
$390$/SQFT
School Information
Description
Experience premium lakefront living in this stunning 5th-floor condo in Diamond Pointe tower. North facing, the unit offers unobstructed, panoramic lake views from the private patios—two with direct vistas of the sparkling water.Diamond Pointe sets the standard for luxury and security at Lake Texoma, boasting an unrivaled location and panoramic views. Residents benefit from a gated entrance and secure building access, with features like sprinklers throughout, an internal stairwell, and a striking glass-front elevator that offers sweeping vistas of the lake as you ascend or descend. The main lobby, thoughtfully designed, provides mail service and a dedicated space for package deliveries, ensuring convenience at every turn. Privacy and exclusivity are paramount here—there simply is no finer building in the area that combines such discretion with its outstanding setting.Step outside to enjoy a spacious balcony, perfect for morning coffee or evening gatherings with breathtaking lake views. Inside, the open concept layout seamlessly combines the kitchen, dining, and living areas, highlighted by an electric fireplace and captivating lake scenery. The unit features two spacious bedrooms and an office with a desk and Murphy bed, perfect for extra guests. The primary suite boasts an en-suite bath with a walk-in shower, walk-in tub, double vanities, and two generous walk-in closets. The secondary bedroom also enjoys a walk-in closet.Enjoy low-maintenance living with exclusive amenities, including a two-car garage in the main building, a large secured storage room on the ground floor, and two reservable guest rooms for visitors. Boating enthusiasts will appreciate the private dock slip with convenient tram access.Ideal as a full-time residence or a luxurious lake getaway, this community welcomes both year-round and secondary owners. Embrace the best of Lake Texoma living.
© 2026 North Texas Real Estate Information Systems. All rights reserved. IDX information is provided exclusively for consumers' personal, non-commercial use and may not be used for any purpose other than to identify prospective properties consumers may be interested in purchasing. Information is deemed reliable but is not guaranteed accurate by the MLS or Watters International Realty. The data relating to real estate for sale or lease on this web site comes in part from NTREIS. Real estate listings held by brokerage firms other than Watters International Realty are marked with the NTREIS logo or an abbreviated logo and detailed information about them includes the name of the listing broker. Data last updated 2026-02-18T23:43:31.07.

Listing information © 2026 North Texas Real Estate Information System.